0571-8715 6553, 0571-8651 0787
136 5667 8880, 公安虚拟网:712 137
网站首页
消防设计
消防施工
消防检测
消防验收
消防维保
合作加盟
联系我们
消防检测_消防安装_消防施工_消防验收_蓝图设计_杭州卓瑞消防公司
消防器材
灭火器系列
安全出口系列
消防水喷淋系列
火灾自动报警系列
消火栓系列
联系我们
杭州卓瑞消防技术有限公司
办公地址1:杭州市下沙区6号路新加坡科技园5幢leo单元一楼
办公地址2:杭州市西湖区教工路18号欧美中心4楼A区
电 话:0571-8715 6553
电 话:0571-8651 0787
传 真:0571-8670 7313
手 机:136 5667 8880
公安虚拟网:712 137
QQ客 服:5909684
E-mail:5909684@qq.com
消防设计
当前位置:
首页
>
消防设计
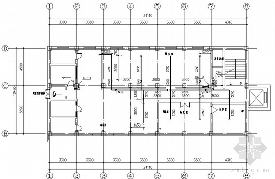
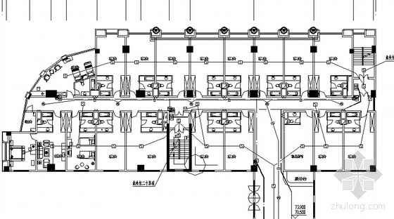
消防预防为主,谈消防设计重要性
随着社会经济的发展,人们生活水平日益提高,为了方便群众生活,满足人民日益增长的物质文化生活的需要,全国各地陆续兴建了许多具有一定规模的大型商业建筑。由于建筑面积规模庞大,聚散人员众多,周边和内部交通组织复杂以及商品密集形成的超常规的火灾荷载,设备用电频繁等各种因素,使大型商业建筑的消防设计遇到许多新的难题。如何确保大型商业建筑消防设计的安全性能,不仅是学术探讨的理论课题,也是急待解决的现实问题。
杭州消防设计专篇编制要求
消防设计依据:本建筑项目所遵循的有关技术规范。
杭州餐厅消防设计审批备案所需资料
餐厅消防设计图纸(装修蓝图、原建筑物白图<其中包括建筑物总平面图、楼层平面图、水、电、暖通)
竣工消防验收准备资料
消防设计专篇及消防设计变更技术联系单(内容应含盖所有施工图变更的联系单及消防部门的批复内容,非消防审核申报时的自审专篇,应为竣工验收时的消防设计,以叉字形式包括变更联系单的日期、内容,由设计院盖公章)
建筑内部装修设计防火审核申报材料
每页5条/共22条记录 当前:第4页/共5页
首页
前一页
后一页
尾页
到
第1页
第2页
第3页
第4页
第5页
杭州卓瑞消防技术有限公司(www.zrxf119.com)一家专业从事消防
蓝图设计
,
消防施工
,
消防安装
,
消防设计
,
消防检测
,
消防代办
,
消防审批
,
消防验收
的高新技术
消防公司
.
办公地址:杭州市下沙区6号路新加坡科技园5幢leo单元一楼 电话:0571-8715 6553,136 5667 8880 传真:0571-867 07313 邮箱:5909684@qq.com
网站地图
ICP备案号:
浙ICP备12038165号-2
优化支持:诚速宝
杭州SEO